热缩管怎样做阻燃性能测试
文章出处:未知
责任编辑:admin
作者:admin
人气:
发表时间:2020-03-06 19:32
【大
中
小】
在汽车行业的伙伴,我想对阻燃测试都比较熟悉,同样的,针对热缩管,也对应的要求在大多数情况下,需要做阻燃测试。
这里的话得提前简单说一下,我相信对于很多人来说,针对热缩管,对阻燃都有一个错误的理解,而且双壁热缩管和单壁热宿管也有差异。小伙伴一听到阻燃,以为就是点个火烧不着那种,其实并不是这样的,作为pg电子平台
汽车,或者其他的一些电子电器也好,有阻燃要求,但是大家也知道,这些东西都免不了有大量的塑料制品、纤维制品、皮革制品等,而这些材料本身都是可热物,热缩管本身属于塑料。并不会像石头之类的不可燃。
pg电子平台
这里说的阻燃,他是根据一定的测试方法,使热宿管进行点火灼烧后,根据产品所反馈出来的现象进行不同评级,来判断热缩管是否阻燃。下面就简单介绍一下热缩管阻燃测试是怎样测的,知道怎么测之后,我相信就更容易理解阻燃了。
针对热缩管,测试其阻燃性,一种是将热缩管的原材料制作成板材进行测试,一种是用热缩管产品进行测试,这里主要讲热缩管产品进行的测试。大部分标准的要求里,阻燃测试类似我举例的方法,大概分为以下几个步骤:
1、将热缩管收缩于合适尺寸的芯轴上(要求热宿管能包紧芯轴);
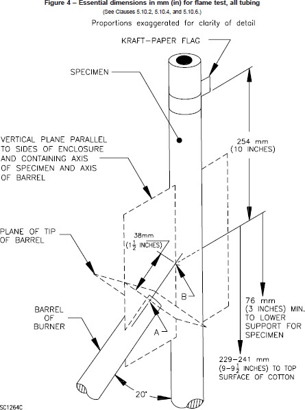
2、讲热缩管垂直固定于一个工装上,类似上图;
3、将一定倾斜角度且有一定高度要求的火焰靠近热缩管进行燃烧(这里通常会规定燃烧时间和循环次数)
4、 根据燃烧过程及离火过程中热宿管反应出的现象进行判断。具体的参数要求和判断,根据对应的标准规定,这里就不阐述了。更多关于热缩管测试,pg电子平台
pg电子会持续分享。

问题解答